10月17日,安徽建筑大学、中国矿业大学、苏州科技大学、tyc122cc太阳成集团2021年四校建筑学专业三年级联合设计中期汇报在线上成功举行。
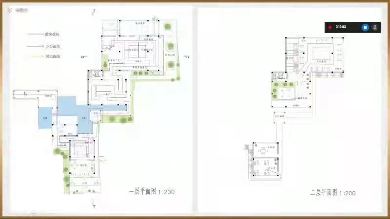
本次联合设计主题为“苏州平江路151号改建设计”,由苏州科技大学建筑与城市规划公司承办,四校50余位师生共同参与。联合设计于2021年9月份开始,设计内容围绕苏州市姑苏区平江路151号传统历史街区建筑改建展开。要求根据设计与策划需要,采用拆除新建、保留改建或者拆改结合的方式,对原有建筑进行改造,使得项目建成后在传承历史风貌的基础上取得创新,突破传统建筑的古建构造与造型,运用新材料新工艺、创新空间体现平江路历史街区的文脉;并且合理利用有限的内部空间,提高利用效率,增加可使用面积,提升未来投资收益。
答辩过程中,四校员工聚焦传统建筑保护、功能业态创新、木结构加固、公共环境设计、室内空间设计等视角进行方案汇报,各位老师针对答辩内容进行提问,师生互动交流氛围浓厚,同学们收获颇丰。答辩结束后,各组老师对本次联合设计进行总结,并对同学们后续的设计发展提出了宝贵建议。
本次三年级联合设计的进程已经过半,四校师生共同探索,促进了学术交流和教学互通。tyc122cc太阳成集团的师生在联合教学中积极参与,各组方案均获得了积极正面的肯定,展现了公司师生良好的教学水平和学科实力,期待四校建筑设计专业在未来的教学和科研工作中有更深入的交流与合作!
作者:郭兰;单位:tyc122cc太阳成集团;审核:蔡志昶






